KDS425型立式螺杆真空泵的结构特点与性能参数
2013-05-08 姜燮昌 美国泰悉尔(中国)集团
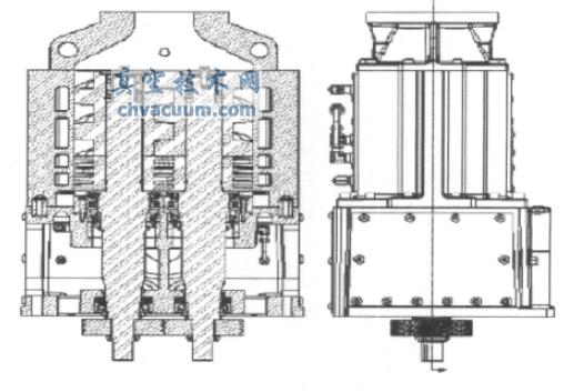
美国Tuthill 公司KDS- 425 螺杆真空泵的外形图如图5 所示,结构剖面图如图6 所示。


* 第二级有旁通阀,在入口压力1.995×104 Pa时开始打开,其结构和气路如图7、图8 所示。







美国Tuthill 公司KDS- 425 螺杆真空泵的外形图如图5 所示,结构剖面图如图6 所示。


* 第二级有旁通阀,在入口压力1.995×104 Pa时开始打开,其结构和气路如图7、图8 所示。







泵是输送机固体或使固体增压的自动化。它将原因素的自动化能或别第三方
水环泵是靠泵腔容量的转化来达成吸气、压缩视频和排气阀的,隶属于变容式
讲叙了经常用的蒸空抽气泵的岗位机理,并得出抽气图。
旋片泵具体由泵体、马达转子、旋片、轴套、弹黄等組成,旋片泵有立式离心泵
水环式水环真空系统泵泵是液环式水环真空系统泵泵中最应见的那种。当任务介质液体为水时,
罗茨泵有的是种无内再压缩的的抽机械泵,一般性再压缩的比很低,故中、高抽真空室罗
螺旋轴泵V密出现了:一定要无法几个封密先决条件,就可以出现了封密积。下面图
论文讲叙了分子组成部分泵的基本上组成部分和上班方法图。
碳原子泵的抽气基理与机泵靠泵腔面积转化做出抽气的基理各个,利
离心力泵的其主要性运作是指视频流量Q、扬程H、率、轴耗油率N,中心句就