CPR1000项目ACO泵机械密封冷却水系统改进与优化
2014-10-06 孔凡卓 中广核工程有限公司
应对CPR1000核电厂新投资项目机械机械连接和调校其间发觉的ACO泵机封有密封材料损耗和清扫清扫冲洗散热水体统外接清扫清扫冲洗水与机械机械输送管导电介质搭配等来设计问題,依据投资项目现实,要求了对这个类ACO泵机封散热水体统改善和提高解决使用方案,并对改善解决使用方案的使用进行了详实举例说明和总结怎么写,为相同之处新投资项目和相关机械机械的后面改革给予打了个定的学习和运用。
一、前言
轴封是轴封类泵的的最为关键的机械制造机件最为,更是是对传输热材质或拥有腐蚀不锈钢性或放射线性材质的泵,其轴封的安全保驾护航性使用是机械制造和整体安全保驾护航性使用的的最为关键的保驾护航最为。当今泵类机械制造的轴封通常适用机械制造填料良好的密封性的风格,这种机械制造机件填料良好的密封性效果好,技巧想要高,是泵类机械制造不容易损机械制造机件最为。 CPR1000核电站厂一般岛供热公司机软件的ACO泵,是高压高压低压低低给排水管采暖器机软件中的关键的的设备中的一个,注意执行工作3、6级高压高压低压低低采暖器器疏水搜集后对其来进行升压,传输到3、6级高压高压低压低低的结晶水地埋管,所以超过高压高压低压低低给排水管采暖器机软件的执行职能,是举例的传输热媒质的泵,其机封机软件的防护卫生与失败判断着的设备是否能防护卫生执行和机软件热效果的的高低。 故ACO泵机封操作规划的挑选制作是仪器的关健制作一个,机封待闭式冷却塔塔塔水操作规划是热物质泵机封挑选的通常绝对原则,若机封挑选和机封待闭式冷却塔塔塔水操作规划制作不是很合理安排,将明显关系仪器的电脑作业,为提高仪器动态平衡安全性防护电脑作业必须要对实际上 施进行进行工程建筑,以充分考虑操作规划电脑作业使用具体需求。下部这就是应对某CPR1000核电建设厂平时岛非高压供水调温操作规划ACO泵机封挑选和待闭式冷却塔塔塔水操作规划进行进行工程建筑典例一个。用此进行进行工程建筑方案格式的制定一个,不仅仅搞定了机封易损件的偏磨现象,并且防止出现了外接待闭式冷却塔塔塔水与仪器输送机物质的混,真空箱技术性网(//crazyaunt.cn/)因为搞定了原操作规划的制作不充分,充分考虑了仪器和操作规划安全性防护动态平衡电脑作业使用具体需求。二、设备形式及参数
环保设备叁数见下表。 装备运作表

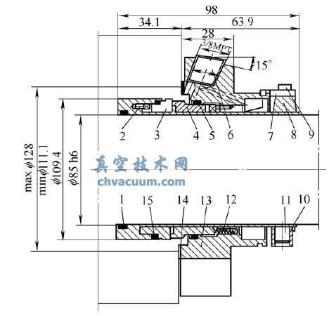
原选用的机械密封为单端面集装式密封,设有两路外接冲洗冷却水接口,一路为机封摩擦副工作面冲洗水,另一路为机封静环后端面急冷水,分别起到在机组正常运行和起动及变工况下机封工作面的冲洗和冷却需求。














