基于ANSYS的低温蝶阀模拟试验与数据分析
借助ANSYS手机软件对高温碟阀顺利进行摸拟系统试验检测,也不损害原整治又用于在ANSYS中地域分布高优质量网格的基础条件上,对高温碟阀原整治顺利进行合理合法的简易。关键在于,顺利进行对ANSYS的一系类操作流程测得不相此外时刻刻的湿度地域分布云图,进而对其湿度转变规律原因顺利进行研究定量分析并顺利进行汇总。二,变动形成热对流板换器指数,对其要求的急冷的用时顺利进行摸拟系统计算的,此外拟合曲线出的用时随形成热对流板换器指数转变规律时的多次许多式。然后,顺利进行对高温碟阀的热-结构类型合体研究定量分析,测得伐门在高温周围环境下使用的安全性高原因。 1、文献综述
随着计算机技术和计算流体力学的不断发展,近年来计算机数值模拟技术已成为产品研发中的一个重要辅助手段,数值模拟与分析也逐步开始应用于各类流体机械产品的设计与分析,国际上一些发达国家运用数值模拟与分析对产品进行了大量计算机模拟试验研究,如Cameron、EEC等公司在解决可靠性方面做了较多研究,Cameron公司为防止震动、减少冲蚀磨损,尽量减少带有盲目性的样机制作,对其产品进行数值模拟研究,使其产品的结构和流道设计更趋合理。
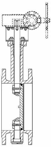
在虚拟时候中采用好物品在工业应用游戏中某些事实工作必要條件导入某些的经验的或者是原理的数值,实行虚拟计算出来求出应要的各式各样场的分布不均,而虚拟检验的结杲正確程度,要采用真正检验结杲来认证,或用检验结杲对虚拟整治实行测量。在还没有检验设备的必要條件下采用虚拟检验也可对好物品的耐热性一斜个很好的的解析。采用流场各式各样耐热性运作的虚拟检验结杲与真正检验数值的实现对比,都可以评诂所有虚拟游戏对好物品在单一必要條件下虚拟结杲正確性和可靠度。为往后好物品组成部分类型优化系统和提高设计的概念可以提供好的的可以参考和指引,使好物品的组成部分类型和耐热性更加的优越性。这边用ANSYS游戏实行环境温度球阀的虚拟运算解析。 2、建模 及物性基本参数 2.1、建模制作与简略计算模特图1为蝶阀的半剖示意图,其公称直径为DN250,其在密封性试验时处于关闭状态。为了在试验过程中减少跑冷损失,首先去掉图1中的传动装置、传动支架和接头部分。对低温蝶阀适当的简化然后进行模拟,前提是不影响原来的模型,主要是去掉一些对结果没有影响的倒角和盲孔里的锥底,这样便于在ANSYS中划分高质量网格。由于主要是针对蝶阀的阀体、阀板、阀杆及其与之关联的部分进行模拟,所以简化后的模型如图2示。


该低温蝶阀阀体、阀板以及阀杆材料为不锈钢1Cr18Ni9Ti,密度为7900kg/m3。由于这种不锈钢的材料在试验中内部组织变化程度很小,所以可忽略其相变过程中释放的潜热。蝶阀阀杆与阀体间的密封设计采用填料函密封结构,为了避免温度过低对填料函造成严重的影响,继而影响阀门的正常操作,在设计时通过采用长颈阀盖结构,使填料函远离低温介质,同时选用耐低温的柔性石墨填料。柔性石墨是目前最优秀的密封材料之一。填料函处的填料及阀板密封材料均使用柔性石墨,其热导率和比热容受温度的影响变化不大。在数值计算过程中取其平均热导率87W/(m·K),平均比热容510J/(kg·K),以及密度1530kg/m3。
3、瞬态热传递了解 瞬态制热叫做这个体系在热处理或者一系列冷却历程中体系的热流率、摄氏度、热周围经济条件相应体系机械能立刻间变化无常的历程。通过能量是什么守节流过程律,瞬态发展的分块矩阵抒发式为: [C]{T}+[K]{T}={Q} (1) 式中:[K]为电荷转移行列式的值,收录传热常数、热对流常数及电磁干扰率和形壮常数;[C]为比热行列式的值,考量体系能够的增多;{T}为接点温湿度向量;{T}为温湿度对时期的导数;{Q}为接点热流率向量,收录产生热。 在主要的冷却时候中,装修材料的物性叁数、分界条件与摄氏度有关系时,同时的瞬态热平稳表示式为: [C(T)]{T}+[K(T)]{T}={Q(T)} (2) 3.1、ANSYS瞬态导热深入分析的大部分过程中 ANSYS瞬态对流传热剖析的首要步骤之一:创立3d模型、加入的载荷系数、求得和后办理。(1)建立模型:定义材料的热物性,定义的不锈钢的导热系数、比热容。定义柔性石墨的密度为1530kg/m3,比热为510J/(kg·℃),平均导热系数为87W/(m·℃)。建立如图2所示几何模型,为不同的面积定义材料的属性,并对几何模型划分网格。网格的单元边长设定为0.001。
(2)施用承载能力:基本概念瞬态热分享的默认状态。基本概念边际状态,在DifineinitialConditions对活框中,选定LabDOFtobespecified后的下拉表框选中定TEMP应用设置,在VALUEtxt文档框中搜索37℃。在Thermal/convection/online运行命令后弹出网页选定对活框,在图文机会选中定须要施用互流互流换热常数的边,判断后在VALI中基本概念互流互流换热常数常数为120W/(m2·K),环境温度基本概念为-105℃。 (3)解微分方程:确认Time/Frequence工具栏。设定承载力步的承载力子步或日期增加,要根据曲线除极热推送,可不可以按ITS=δ2/4α预计默认值日期步长,中间δ为沿热流方位热均值最高处的模块尺寸,α为导温指数,α=K/(ρ·C)。 Time/Frequence按钮的子按钮Time-timestep中設置总时段为10800s(3h),时段步为10s,世界比较大时段步1s,比较大时段步为250s,在stepped项下选择ON。并因素电脑自动的时段按钮为ON,妥善于在解求时候中电脑自动的改变时段步长。 非直线界面卡每种子步默许的升级频繁为25,在OutputCtrls/DB/Resultsfile界面卡数中择Allitems,并在filewritefrequency界面卡数中择Everysubstep,推导solve/CurrentLS。 (4)后办理:再生利用POST1对模板实行后办理。 3.2、瞬态冷却概述的报告与概述 利用POST1对图2对模型展开后进行处理,对流换热弹性系数热传递弹性系数为120W/(m2·K),蒸发室内体温为-105℃时的室内体温划分云图就像文中3、图4下图。






















