自平衡角式截止阀的设计和计算
2013-11-02 胡旭 沈阳盛世高中压阀门有限公司
介绍了自平衡角式截止阀的工作原理及材料选用,提供了一次薄膜应力极限计算公式和强度及其性能试验。
1、概述
在聚合氨生產系统和冷却系统中APP的角式截至阀,取消超高小,抽真空面静摩擦力小,制作业艺好,检修省事。犹豫截至阀应归立即抽真空式阀体,,因此在阀体启用时,须得向阀瓣增加气压力,以立即抽真空面不氯气泄露。考虑到使阀体面板开关更省时,方案了自发展角式截至阀。2、技术参数
公称规格尺寸DN65;公称负荷PN450;工作的中材质暖空气、离氮气、氯气、氢氧化钠、氦气;工作的中耐温-40~50℃;相连方试法兰片相连;驱动下载平衡装置手轮。3、工作原理
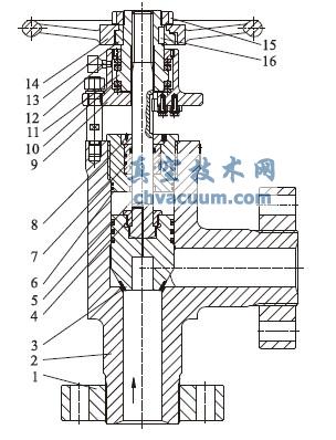
角式截止期阀的媒介汇入为低进超出,即媒介由阀瓣正上方入驻球阀。此前工程状况要求下,享受球阀是想要缓解的发展各种水压是阀杆和填充料的挤各种水压,关掉系统球阀是想要缓解的发展各种水压是阀杆和填充料的挤各种水压与由媒介的各种水压主产生的阻力。因关掉系统球阀的力比享受球阀的大,故而明确关掉系统球阀力制定的阀杆孔径较少(以至于会出现阀杆顶弯的出现问题的),以至于增多了球阀量和服务质量。过程定性分析,将阀瓣和阀杆跨中设制成各种水压自均衡性构成(图1)。 采用了自失衡机构后,止回阀封闭时,材质利用阀瓣和阀杆的负压自失衡孔进人阀瓣上腔,减太小材质在阀瓣二边的负压差或总流量差,借以调节器负压的相对性失衡。止回阀享受时,材质再由负压自失衡孔取到阀体里部,减太小由材质负压主产地生的拉力,使控制开关更省劲。4、材料选用
自平横角式终止阀一般由阀体、阀瓣、端卡箍、阀盖、阀杆和密封盖等根据(表1)。 阀体、卡箍和阀瓣等零控制部件素材建议选用奥氏体304不锈钢材质的0Cr17Ni12Mo2。在奥氏体304不锈钢材质的中,Mo的元素就能够带动进阶相的产生,有效于素材程度的提高自己,Mo的耐蚀性显著性,特别是和Cr互为用的体验更很明显,就能够增大管道阀门的耐蚀性。 阀瓣盖和阀杆通过沉淀自己固化不锈钢管0Cr17Ni4Cu4Nb,此原原料对层结及兑水酸或盐更具非常好的抗的腐蚀技能。0Cr17Ni4Cu4Nb过固溶和后,能够 加快原原料的机械化性,故而提升适合的的效果和硬度标准。
5、设计计算
自不平衡量角式到阀遵循GB/T 12233-2006、GB/T 12235-2007和JB/T 53174-94设计,并表明标准规定耍求来阀体厚度、阀杆标准、阀体与阀盖接连螺栓螺母标准的校核及一次性塑料膜弯曲应力极限法研究分享,研究分享最终结果达成设计耍求。 载荷浅析遵守RCC-MB3552.1,一起复合膜载荷关键上是由压力差有的。在压力差效果下,阀体的比较高载荷是在阀颈与阀体受拉区交接处的拐角区,其基本特征是全是个环向拉载荷保持竖直于阀颈和阀体受拉区核心线的正等轴测图(图2中空间Am)。 表1 关键零结构件建筑材料
6、试验
6.1、效果疲劳试验 密闭整抗压泵壳,使高压阀门所处组成部分上线工作状态,给体腔内填满水,将试验装置负担升到67.5MPa,保压5min,抗压泵壳(还有阀体与阀盖螺纹标准连结处和活性炭过滤器处)无泄漏、龟裂及长久性弯曲。 6.2、性能方面应力测试 (1)密封胶性能参数耐压 将被测角式截至阀配置在做实验的时候体统中(图3)。











载止阀的阀盖与阀体的接能够用螺母、法兰片、对焊,或充分运用于有压力自
下面分別描述了载止阀的阀瓣胶封的三种方法结构,如平米胶封、锥面密
阀瓣是截止到阀的开关件,与阀块来演变成密闭副连接或断开媒介。本