马钢2250热轧高压水除鳞阀的改进
2013-07-16 沙文岗 马鞍山钢铁股份有限公司第四钢轧总厂
高压水除鳞阀主要用于冶金系统轧钢生产线高压水除鳞系统,文中详细介绍了原厂安装的德国DR.BREIT除鳞阀的基本结构,并分析了该结构的特点,在此基础上对其阀体结构进行改进,最后讲述了该阀的使用和检修时的注意事项。
除鳞阀关键用来有色金属冶炼业冷轧除鳞程序,进行安装在除鳞程序的调控网络终端,在调控程序汽源阻力的用处下,调节阀 位于常闭模式。当钢条或钢坯渗入相应办公桌,调控程序能够得到了除鳞信息,二位五通电滋阀得电回转,调节阀 打开浏览器,除鳞程序逐渐开始压发射高压力电水,抛开钢坯接触面阳极氧化皮。当钢条或钢坯脱离相应办公桌,调控程序能够得到了完结之除鳞信息,二位五通电滋阀停电回转,调节阀 关掉,除鳞程序暂停压发射高压力电水,除鳞完结之。除鳞阀要耐用度长、抗被污染作用强、密封圈性好、运行灵活多变可靠的。1、DR.BREIT除鳞阀基本结构
除鳞发射阀主耍由主阀、推动有些和掌控有些形成。芬兰DR.BREIT除鳞阀主阀为阀瓣截止日期式低进高上结构的(见图一),主耍例如阀芯、阀套、阀块、阀杆及填料机械密封件;推动有些用双意义节流阀,主耍由节流阀、节流阀、节流阀上盖、节流阀下盖等形成;掌控有些用自动掌控,主耍由自动三联件、单线节流阀、二位五通磁感应阀等部件形成。
2、DR.BREIT除鳞阀工作原理
DR.BREIT除鳞阀任务操作过程如图已知2如下。 阀关了时挤压热废气利用5/2通电滋换相阀(失电环境)进来主阀汽缸上侧,时候将汽缸下部分的热废气排净,将主阀芯向阀球位(向右)促进,主阀关了。 阀取消时气动平衡5/2通电磁炉回转阀得电时并回转至使降低水汽当中进人主阀液压泵下面另外将液压泵上半部的水汽当中排除,将主阀芯往前积极推动逃离阀门法兰位,主阀取消。
3、DR.BREIT除鳞阀特点
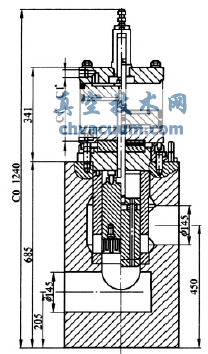
DR.BREIT除鳞阀主阀的阀芯为段造的园柱形空心体,向外开机操作时开起程序,积极开机操作时开启,伴随确认其中一位三通管的控制阀使高电压变压器水到了气式上半部的其中一位均衡性腔,行成均衡性功用,让该阀尽快开启和相对性的慢速开起程序便于保持;一同该阀的旋转打开流程借助阀芯与高电压闸阀之間封密的周密部署方面来担保。伴随其阀口封密主要采用软封密风格,对水体质量的纯钻戒颜色有相对高的规定要求且易受不溶物妨害,甚至封密在阀芯上,受力后外凸,在旋转打开流程中时易蹭磨破裂,己经问题,渗漏的高电压变压器水会马上确认气蚀和壅水功用风蚀掉随后的阀芯和阀套,容易造成高压阀门无效。4、DR.BREIT除鳞阀的改进
致使该阀的内在机构影响,全国水质检测运行条件(浊环水)無法满意其运行性能方面想要,会造成其封口件坏掉、阀芯和阀套冲蚀重要,期限差,从而导致配件量大、检修花费高,以此我对其机构确定了改善,改善后阀芯阀套机构图如下图已知3已知。






