量值溯源采暖操作设计在存放在温度控制器阀后面为变水流量操作设计,要选取适度的入口通道监测器才行挥发工业节能的用,采取目前有的户内操作设计选取适度的机械设备。
一、前言
得节约清洁能源,养护区域环境,是可定期提升的活动形式。我们国家城区热力设计能耗极大的,正能量可以有效采取率低。学习比较适合我们国家热力特性和现况的热力设计和可以调节能力,完整为重中之重。
跟随着压力容器检验采暖的一个劲推广,我國的采暖设计在一个劲成熟。以便可以保障采暖質量,满足了舒适安逸性需要,直接省能源资源,在水冷器上安装使用恒温阀,完成了采暖设计的自主经营调低,采暖设计是动态展示的变热度(抑或定热度)设计。为适宜热网水能力工程环境的变化规律和可以保障采暖質量,设计两类应配备对的把握调低保护装置也能起效用,不然就,会使设计往往达还不到调低需要,偶有时还有机会起反效用。
二、平衡阀的工作原理
(一)空态取舍阀
动和平阀现实上起的初调的效应。从调基础原则上看,动和平阀现实上可以说是的有压力告诉的人工手动开启机组调阀。在动和平阀的上中上下游、上下游端各装一家测压孔,用作精确测量射流在止回阀的压降。便用时,测定止回阀压降和读出压力,可以了算出在止回阀的用户国内人流量。动和平阀起始懂得调控时,是通过装修设计工作下每一个输送管的用户国内人流量来调的。当整体动和平阀起始懂得调控完工后,且在输送管发展阻力弹性系数不用发生的變化的实际情况下,各输送管的用户国内人流量确定比率始终保持始终不变。
(二)自力式流量的设定阀
不须得外接运转,依托流体力学出入的特征,在上或河流下游的进而导致阻力在务必范围图内会发生变幻时,它能否采用地埋管内阻力的变幻自己调整开启度,因而使用户大致实现不会改变。有的是种信息动平衡机阀。
(三)自力式气体压力的控制阀
自力式学习压力操作阀的特色与自力式用户流量操作阀这样,也就是种动态的平稳阀。它不需外接推力,仅取决于气体流的因素,在上或中上游的学习压力降在务必依据内发生的影响时,它也可以能够 管内学习压力的影响私自上下调整开启度,因此使气体能够 阀心时压降的影响来解决液压管路学习压力降的影响,利用户的考区学习压力差不多提高相同。
三、住宅建筑不同户内采暖系统形式平衡阀的选择
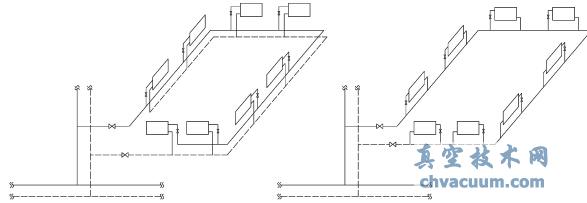
在具体实施了热压力容器检验时候,户内采暖系統往往可以包含四种:一种是有使用立管且户内为双管系統,其它种是带翻越管的铅直单管系統还有是有使用立管且户内为带翻越管的层次单管系統(所示1、图2)。在温度控制器阀改善后,这四种系統对总联通流量的干扰就是一致的。

图1 能力双管式设计 图2 能力单管走向式设计
(一)双管系统软件
1、自力式流量的把握阀
逐渐棚内容载的变,温控仪阀将继而而自功变。这些使用热量散发器的留量也继而变,这就后果着热网的留量时时都有变,应配用动向动平衡机阀。
自力式人手机热度把握阀的用是在工作内容的发生转变 时尽量避免提高该压缩空气管道的人手机热度相同。装室温抑制器阀后压缩空气管道人手机热度在逐渐转变 ,很显然与自力式人手机热度把握阀的用相分歧。比如在装室温抑制器阀的压缩空气管道上再装自力式人手机热度把握阀,对室温抑制器阀的调接用有危害的而无一利。当某类客户屋内短路电流减轻时,室温抑制器阀会定时关小,则相对而言压缩空气管道人手机热度应减轻;但比如该压缩空气管道有自力式人手机热度把握阀,则自力式人手机热度把握阀感知力人手机热度减轻后能会定时大招,然后使压缩空气管道人手机热度延长达成其提高压缩空气管道人手机热度相同的意义。于是压缩空气管道人手机热度的相对而言增大,自动上链的效率降低等不良情况的发生(实际上的是提高原人手机热度相同),又造成 室温抑制器阀的进这一步关小,这样一来转变成不断循环,还有造成 室温抑制器阀关到较大,而屋内室温仍会高出规定要求,反过来亦然。因而,装室温抑制器阀的有重复使用立管且户内为双管的掌握系统难以再装自力式人手机热度把握阀。
2、自力式压值掌握阀
自力式心理压力操作阀和温度把握器阀合配合就可能最好地 保障温度把握器阀顺利的产生做用。图2取决于的观众工况减小时其温度把握器阀关小,相取决于的液压管路手机水普通粉丝数减小,因组成总手机水普通粉丝数减小,体系压力图再次发生会影响。就像文中2中的实线提出温度把握器阀没调接以后的压力地域分布图制作,△P为观众所需要求的资用压头;虚线提出温度把握器阀调接后面的压力地域分布图制作。因为总手机水普通粉丝数减小,干管上心理压力毁损也减小,外网给观众出所出具的资用压头加强到△P'。怎样观众没装自力式心理压力操作阀,则因为外网出具的资用压头大,温度把握器阀又会进一个步骤关小,尽管多次组成正反面两面馈,使温度把握器阀没办法顺利的产生其系统。但怎样装自力式心理压力操作阀,自力式心理压力操作阀可能随着心理压力的会影响而自然调接关小,心理压力操作阀需求量掉2倍的△P'',使外网出具给的观众资用压头(△P'-2X△P'')通常长期保持没变,仍相当于△P怎样就没有对温度把握器阀组成正反面两面馈的会影响。

图3 水管打压图
(二)单管横跨式设备
带转变管的垂直于单管设计,是由于温度控制阀的功能,使按照热量散发器的留量随别墅地下室用电负荷变现而变现,需要比例怎么算的大家调接将诱发一起来的留量变现再7%连加连减变现,因为可能指出单管转变式设计为定留量设计。故而,于此热网基上是在定留量开机运行。
静态数据稳定阀可以转换,实计上是初可以转换,即在可以转换成功后确保各支路热度的分销比倒表到达规定条件,但当集中供热网多新访客账户名或原先访客账户名情况遭受变换后,热度分销比倒表遭受了变换,考虑到又条件通过之后的改变。的同时,在可以转换流程中考虑到个个访客账户名期间的交叉交叉交叉耦合电路干系,如把有1个访客账户名热度的改变在设计的规定条件值,但当可以转换另有1个访客账户名后,考虑到交叉交叉交叉耦合电路反应,第有1个访客账户名的热度又遭受了变换,如交叉交叉交叉耦合电路可怕,还条件之后的改变第有1个访客账户名。考虑到,回收利用那样可以转换方式,在个个访客账户名交叉交叉交叉耦合电路可怕时一定的要作好解耦工作。
1、自力式用户把控阀
自力式客视频访问量操纵阀的效用并不是绝对质量客视频访问量整改比倒,还绝对质量该的阀门所主要负责的支路上客视频访问量操纵未变。如此当供暖网增多新玩家后,原先的支路的客视频访问量遭到决定后它可以一键的调节来改变这波动,故而操纵该支路的客视频访问量未变,原先的支路的自力式客视频访问量操纵阀不可以全新做好整改。
2、自力式压差大掌控阀
自力式气体压力操纵阀与自力式总手机流量操纵阀一样,它会有保障该电动阀门所担负的支道路上气体压力加入变了。由于当热力网加入新玩家后,以往支路的总手机流量受到了决定后它是可以系统自动上下调整来适于这些变化规律。
谈谈单管跨跃式系統,犹豫该系統可矩阵合同人为是定的2g2g流量系統,供热入口通道安装程序程序使用自力式的2g2g流量管控阀和自力式差压管控阀都具有一样的疗效,只是从現场安装程序程序使用和操作方法甚至装置的经济发展上考虑到,安装程序程序使用自力式的2g2g流量管控阀比最合适。