气动喷煤粉卸灰球阀的用途与特点以及外形尺寸
2009-07-07 真空技术网 真空技术网整理
产品型号:QM647AF
阀门类型:固定球阀、喷煤粉球阀、卸灰球阀
口径范围:DN50~DN500
压力范围:PN2.5~PN16
主体材质:铸钢、不锈钢
驱动方式:气动
适用介质:含尘气体、煤粉等
适用温度:-28℃~300℃
一、喷煤粉卸灰球阀的用途
不锈钢阀体长主要用于石油工业、具有气、新疆煤炭和石矿的洞采、收集制作加工和水管传输机软件中截掉或拨出去媒质。喷煤粉专用型不锈钢阀体、卸灰阀特备可主要用于于炼铁高炉煤粉喷吹、含尘量含固态物粉未水管机软件、气流聚氨酯保温管及喷枪聚氨酯保温管等工况法。二、喷煤粉专用球阀的特点
1.喷煤粉专用球阀的阀座带有磨损自动补偿装置,更可靠的确保球阀的密封性能;
2.喷煤粉卸灰专用球阀的密封圈采用特殊材料制成,具有耐高温、耐磨损、使用寿命长的特点;
3.阀杆采用整体锻造并调制处理,硬度达到HB220~250,阀杆采用防吹出结构设计,根据需要可加长阀杆用于埋地场所;
4.根据客户需要,卸灰球阀可设计成防静电结构,在球体与阀杆、阀杆与阀体之间设置导电弹簧,避免静电打火点燃易燃物质,确保系统安全。
5.密封副形式多样,根据不同工况可选用软密封结构、硬密封结构、防火阀座结构等结构设计;
6.根据需要可设置注脂辅助密封结构,在阀座和阀杆部位加装注脂阀,紧急情况下可暂时密封;
7.喷煤粉卸灰球阀还具有阀门结构紧凑、启闭灵活、安装维修方便等特点。
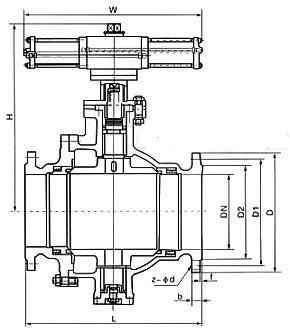
三、喷煤粉卸灰球阀的主要外形尺寸
| 公称压力 PN |
公称尺寸 DN |
尺寸(mm) | ||||
| L | D | H | ||||
| 手动 | 气动 | 手动 | 气动 | |||
| PN16 | 25 | 180 | 140 | 235 | 90 | 298 |
| 32 | 200 | 155 | 235 | 107 | 304 | |
| 40 | 220 | 250 | 330 | 127 | 370 | |
| 50 | 220 | 250 | 330 | 140 | 367 | |
| 65 | 241 | 350 | 400 | 164 | 425 | |
| 80 | 283 | 350 | 510 | 177 | 484 | |
| 100 | 305 | 420 | 510 | 206 | 531 | |
| 125 | 356 | 700 | 580 | 292 | 570 | |
| 150 | 394 | 1000 | 720 | 320 | 570 | |
| 200 | 457 | - | 720 | - | 610 | |
| 250 | 533 | - | 900 | - | 670 | |
| 300 | 610 | - | 1050 | - | 740 | |
| 350 | 686 | - | 1290 | - | 790 | |
| 400 | 762 | - | 1600 | - | 905 | |















针阀的空气对流线路上设为有小的孔口,调准针状封严轴和孔口的距
球阀几何体数字符号是对球阀简易的几何体进行标注,通常适用制图等科技领域。球阀
调整了进囗的电滋波阀的方案行驶,二次方案了新型产品两名三通接头大热度电滋波
本论文揭露了氟胶圈角阀和全黑色金属角阀的工作上操作过程举例架构举手图。
旁通液压系统掌握泄压阀进行安装在负责道中止审理回阀出口处侧的旁通热力管上,与
放气阀是向高压气室腔身体里把手机通讯录实验室气体,以摧毁高压气室的伐门(图1)。对於超
情况的动动平衡机管道阀体的事业原因
情况的动动平衡机管道阀体的结构特征原因图和事业原因是
电磁能波阀是电磁能波电感线圈通电后生成磁场诱惑缓解板弹簧的气压助推阀芯运作
调高螺丝能拆迁补偿的阀芯阀门法兰良好的密封性面的磨花, 阀芯有长定的项目度能拆迁补偿的