核一级电动闸阀抗震分析
2015-03-28 周莹 上海核工程研究设计院
基于有限元分析和经验公式相结合的方法,计算核一级电动闸阀整机的振动模态以及在承受地震载荷及设计组合载荷共同作用下的应力及变形。根据ASME规范对承压边界部件作出应力评定和强度校核。
1、概述
核电厂厂站站中要会用到大批量的调节阀 ,至少有一定次数的调节阀 成为核级调节阀 。核级调节阀 在构思的、制作业和查验等各大要素上的可以均超过常规调节阀 。核级调节阀 为核电厂厂站站中核心的健康管理性专用设备,可以能务必核电厂厂站厂生命周期期间的动用负载和余震灾害负载,并能确保重压界限全版详细和不剥夺性能,因而在构思的核健康管理性级调节阀 样品时可以要做好热扯力比运算和隔震设防具体阐述。现,核级调节阀 的隔震设防具体阐述常见用到运算机系统运算和体验公试运算结合实际的最简单的方法。本篇文章以核6级自动闸阀试对,核验调节阀 在健康管理性停堆余震灾害(SSE) 负载及构思的組合负载做用下的空间结构全版详细性。具体阐述中使用细化的限制元杆多效率点- 梁模特运算调节阀 机器的共振模态,或是在务必余震灾害负载及构思的組合负载一致做用下的热扯力比及出现变形,其次依据ASME 规范起来做好热扯力比评定标准和抗压强度校核。2、分析评定方法
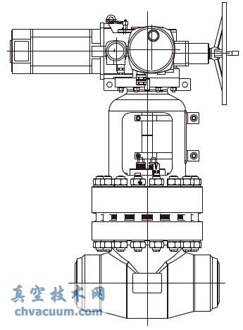
管道电动球阀的防护职位为核4级,抗震设防标准烈度设防设防方式为抗震设防标准烈度设防设防I类,管道电动球阀的主涂料为SA182M F316,支架上由A276M-304 制出(图1) 。涡流科技网(//crazyaunt.cn/)给出管道电动球阀的结构的特性、四川地震灾害输出和ASME 符合要求第III 卷NB-3500 的符合要求,确立对阀体、阀盖插件及固定不动螺帽确定抗震设防标准烈度设防设防剖析和考评。抗震设防标准烈度设防设防剖析初中升高中虑的负荷包含气体压力、载重量、管道电动球阀运营负荷,移交负荷及及总体水平两队向和垂线路径的四川地震灾害惯力力。


阀盖属于承压部件,可采用ASME 规范第III卷附录XI 3200 的法兰分析方法进行计算。根据NB-3500 的要求,如果阀体- 阀盖采用螺栓连接,采用XI-3000 的方法进行设计和评定。
3、评定结果
3.1、ANSYS型号图 将阀体、阀盖、之架、直流电压电动伸缩平衡装置举例他器件简化法为集约化质理- 梁三维模式化,用于多质理点- 梁三维模式化完成球阀抗震等级了解(图2) 。由ANSYS 环节有该球阀低于频繁 f = 60.9Hz。



由于A - A 截面的壁厚远大于配管的壁厚,可以认为,阀体的A - A 截面足以承受配管对阀体的作用载荷( 包括地震载荷) ,不需再作评定。根据NB - 3500 计算得到该阀门的疲劳寿命等于5 × 104次大于2000 次,满足设计要求。
3.3、阀盖划分 阀盖的材料SA - 182M F316。阀盖所采用ASME -BPVC 标准规范,第III 卷,绪论XI3200 的法兰片分享做法实行计算方式评估( 表3) 。 表3 阀盖地应力定量分析结果显示











直线式闸板两封好面相护直线,并有直线式单闸板和直线式双闸板之
闸阀又叫闸板阀,一般由阀体、阀盖、闸板、阀杆、阀块和隔绝规整填料