此文讲解了小编都水电安装站中Φ1.6m圆球型阀的能方面、新架构及架构规划特质还有启用条件。这类新架构的适用,使整套圆球型阀的总体目标布置图更多合理性,能方面更最先进,既节约用电了食材,减掉了生产工时,又为用户组启用和维检出具了不方便,同样也提生了圆球型阀的技巧国家经济统计指标,建立了好的市场经济功效。
1、引言
我都水电工程站属于江西省甘孜藏族民族自治州康定本县,是可燃气体河干流梯级的开发的第一级,为低闸高水头调水式带并网发电厂。品牌进入校园市场紧连龙洞梯级带并网发电厂,上中游与冷竹关梯级带并网发电厂相接。闸首属于柳杨沟口品牌进入校园市场约700m处,厂房车间设计属于熊家沟口上中游约7O0m处,闸首上行速率约9km至州府康定,厂房车间设计下行带宽约33km至沪定,经天全、雅安至佛山,公路工程飞机航程约315km。带并网发电厂安装系统使用量为3×80MW。北美GE集团可以可以提供2台套水轮带发交流接触器组,还有2台套Φ1.5m球体阀。中国东方交流接触器有限的集团可以可以提供1台套水轮带发交流接触器组及1台套Φ1.6m球体阀。
我都水电气气站水轮并网发减速汽车发电设施设备及引导设施设备是属于我集团在200五年4月16日与湖北华能康定水电气气有效承担的责任集团履行的设备供给协议书。
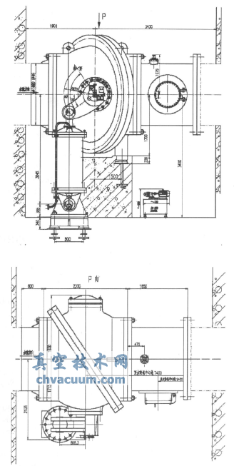
神话直流电机有限平台平台展示 的球状阀(见图1)是水轮机存水阀,球状阀用作水轮机的意外保护区和巡检调节阀 ,安裝在灌渠管上中游新风系统的电厂民房内,层次心中线标高为EL1756.5m,球状阀径直心中线座落在发电机组心中线的中下游侧7.4m。

图1 球状阀布设图
为了让大大减少圆圆形阀环境承载力克重,使圆圆形阀节构及性能参数以达到内地外先进集体平均水平,我司对一部分最重要零件节构做几预案相对较深入分析,在拥有圆圆形阀稳定稳定可靠自动开机正常运作的先决条件下,装修来定制的出了容积小、克重轻、合适该发水电站厂水轮机要求的Φ1.6m圆圆形阀。装修来定制的一刚开始200五年13月刚开始,于2008年3月25日来完成图子装修来定制的。石材中间,于200五年13月15日至3月22日,在我我司闭幕了什么是服务器组的第四次装修来定制的查看及建立联系会,微信微信用户同样了我我司系统阐述的水轮发水电站空气能热泵及圆圆形阀的装修来定制的预案,并沟通交流了关以方法设备原因,授予了中国方案。于2008年7月25日至7月27日,在我我司闭幕了什么是服务器组的第2次装修来定制的建立联系会,沟通交流了关以方法设备原因,取得一堆致意见。小橙子都发水电站厂于06年11月开始商业楼自动开机正常运作,空气能热泵及圆圆形阀自动开机正常运作非常好,会受到微信微信用户回评。
2、水轮机及球形阀的性能参数
(1)水轮机的耐磨性性能
水轮cpu型号号 HLD381b-LJ-265
最大程度水头 392.9m
设置水头 358.0m
不大水头 351.5m
设置用户量 25.13m3/s
特殊负荷率 82.1MW
额定功率转速比 428.6r/min
回转中心点 俯瞰顺时针方向
(2)圆形阀的机械性能参数指标
圆柱状阀类型 QF4OO.9-WY-160
球体阀民的名义网套直径D 1600mm
进水管试验报告的压力 6.9MPa
球体阀载荷系数热度Q 25.13m3/s
球型阀明显运行水头Hmax 400.9m
球状阀必须的上限升压水头H' 500m
接力赛器直径约Dc Φ650mm
接力赛器旅行路线S 1190mm
球状阀关闭時间t 60~150s(可调节)
球体阀动水开起时t 60-150s(可手动调节)
结力器操作流程汽压p 3.6-4.OMPa
旁通阀截面积d1 无
空气质量阀外径d2 Φ100mm
球型阀的最大程度漏水现象量(初装)q 0.01L/min
圆柱状阀的汽压配置类型 HYZ-4-4
球体阀的集油安装 JS-250
水电站台数n 1台
3、球形阀的工作原理
当球体阀要进入设置时,1移除后期的维修保养密闭性能处的3套周圈均布的沿河水量方面锁锭后期的维修保养密闭性能的锁锭,第二步在后期的维修保养密闭性能的进入设置腔通入有事情阻力差油,使后期的维修保养密闭性能仍处在进入设置的前提,中在中中上中游后期的维修保养密闭性能的旅行路线英文按钮的数字手机卫星信号凸显进入设置,在这里概况下,在在中中上中游岗位密闭性能的进入设置腔通入有事情阻力差油,使岗位密闭性能仍处在进入设置的前提,且在中中上中游岗位密闭性能的旅行路线英文按钮的数字手机卫星信号凸显进入设置,那样,河水量就用中在中中上中游后期的维修保养密闭性能处的周圈缝隙与在中中上中游岗位密闭性能的周圈缝隙向蜗壳内充水;当流阀左右有事情阻力差更趋稳定,抑制球体阀的有事情阻力差感应器器和有事情阻力差按钮的凸显做到控制值时,结力棒器甩动流阀由全关翻转视频到开高,球体阀进入设置步骤停止。当球体阀要关毕时,1,结力棒器甩动流阀由开高翻转视频到全关,第二步,在在中中上中游岗位密闭性能的关毕腔通入有事情阻力差油,使岗位密闭性能仍处在关毕的前提,且在中中上中游岗位密闭性能的旅行路线英文按钮的数字手机卫星信号凸显关毕,河水量被大部分截取,球体阀关毕步骤停止。大部分前提下,中在中中上中游后期的维修保养密闭性能一直仍处在进入设置座位,仅能有当空调机柜后期的维修保养或球体阀换新岗位密闭性能时,关毕球体阀后期的维修保养密闭性能,并支出后期的维修保养密闭性能的机诫锁锭。长时停止时或空调机柜会出现事件而导水医疗机构没办法关毕时,关毕球体阀岗位密闭性能。值当一提的是球体阀岗位密闭性能是要经常性被操作使用、运行的,而后期的维修保养密闭性能是较少运行的。单独,在引水渠铁管满电水的前提下,球体阀流阀仅能仍处在全关或开高座位,不能够存留在许多座位做调理热度用。
圆形阀的运行:
(l)球体阀能在阀室或中控室以一两个电商元件单脉冲按相关规定程序流程图一键地实际基本操作。实际基本操作时能否人工,而能用开、停用继电商元件。
(2)1台圆形阀用1套HYZ-4-4型汽压机机械,其实际的操作油源的额定的压力值为3.6~4MPa。圆形阀的开放、封闭程序是采用汽压机实际的操作接力赛跑器来完成的。于是,当抛弃厂用电户源,在汽压机机械的主、备助力泵不怎么提供的油的问题下,仍能稳定地动水封闭程序圆形阀。
(3)汽压机 紧急高压油泵投身,汽压快速增涨及储邮箱油面歪斜常时,都能够以放出警报声预警。
4、球形阀结构设计特点及采用的新结构
球型阀核心由分半的前阀体、后阀体、门伐、自润滑整体性滚动轴承及检修保养胶封、运行胶封、Φ650转动式接力棒器等零组件组成了"附属医院设施机器有中河流下游连到管、河流下游升缩节、作排气管和补气用的Φ100氧气阀与适用球型阀管控的水整体性、油整体性及全工业自动化组件,球型阀管控整体性的油压机设施机器整体性。球型阀装配图图片见图2。

图2 球型阀装精美配图
本球型阀为横轴型,悬板中央流道直径为为与上、上游灌渠管直径为为同等,具高画质时阻尼力亏损极小值(可失去不计入),全关时胶封性好的优点和缺点,是种新型的的双胶封環球型阀。
4.1、球体阀主封严
球状阀的维护良好的封口性圈及运作良好的封口性圈分为同样的304不绣钢活塞件式良好的封口性圈环,使其阀体的进口货、出口值生产研制的尺寸是同样,为研制生产研制带来了了更大的不便。阀体分为偏差轴孔斜分半整铸架构的,使阀体分半面周圈良好的封口性圈生产研制不便,良好的封口性圈治疗好用吗,阀体分半面螺丝划分透亮,支撑力好,规避了沿阀体轴孔重心线立式分半所有的轴孔右侧螺丝跨距大,把团结缺陷,合缝面错牙墙面渗水状况。阀体偏差轴孔斜分半架构的.我工厂研发部门的球状阀新架构的。分辨在渔子溪Φ1.6m球状阀改变项目流程上和卡杜里Φ1m球状阀,高桥Φ1m球状阀和华光潭Φ1.75m球状阀、瓦屋山Φ2.5m球状阀等上适用。上、下良好的封口性圈环分为完善后的内部较专业的良好的封口性圈环架构的,除去了仅有的止漏环支撑力欠佳而生成歪歪扭扭开卡的状况。前、后阀体良好的封口性圈环翻转处均堆焊有304不绣钢层,防患未然止运行业务中生成上锈开卡和受损天然橡胶良好的封口性圈圈。阀体的二轴孔是能够轴瓦背负缩放部件重量体积还有的功效在流阀上的水学习压力。
4.2、移除旁通阀及圆柱状阀轴心充、排水沟阀
原项目招标书是标准要求设旁通阀的,在签枝术商议时,咱们与业主商讨,愿意撤消旁通阀。GE全球厂家的Φ1.5m球型阀上设制了旁通阀,多了1套体统软件,对球型阀正常运作一定影向。犹豫球型阀上、上河流下游胶封隔绝盖均进行胶封隔绝盖环型式,但是,曾经球型阀进行胶封隔绝盖盖运用的向球型阀轴心充水和泄水液压体统机油泵式多路阀阀及定检液压体统机油泵式多路阀阀而设制的闸阀和管道物种多样性撤消。同一时间,利用球型阀上河流下游胶封隔绝盖环关闭宽度向蜗壳充水的客访问量,多于Φ150mm液压体统机油泵式多路阀阀充水的客访问量,所以说,向蜗壳充水的液压体统机油泵式多路阀阀及为定检液压体统机油泵式多路阀阀而设制的闸阀和管道也同一时间撤消。如此一来,使球型阀的型式及控制体统软件进一步简化版。
4.3、悬板及封水环
门伐按照阀轴与整铸门伐焊结为整体的型式,阀轴与整铸门伐焊结为整体的型式也这是品牌研制开发出的新型式,在渔子溪Φ1.6m球体阀和华光潭Φ1.75m球体阀上动用过。门伐上、上游处激光工艺有把合封水环的螺孔和止口,是为了于封水环套上之后把紧、确定,换洗封水环不会用拆卸的球体阀阀体。封水环与封密环是顺利通过配碾磨来实现融洽触及的面积止漏目的意义。封水环影响后,可是不解散球体阀的情况发生下换洗封水环。一起在球体阀生产制造中,封水环、封密环可分开激光工艺,成对碾磨,为激光工艺造成 更方便。门伐两轴颈与轴瓦及封密触及的面积面为红套并焊固的冷库保温隔热板的表层套,为了防止门伐轴氧化,受损轴瓦。
4.4、封严环位置上显示信息设备
填料封密性能垫性耐腐蚀性垫环为铸造厂不锈钢304,在球体阀上、中游导环与阀体两者反复滚动条,且有点职业填料封密性能垫性耐腐蚀性垫件批发厂家营造的结构填料封密性能垫性耐腐蚀性垫圈。一些结构填料封密性能垫性耐腐蚀性垫圈填料封密性能垫性耐腐蚀性垫耐腐蚀性好,运行使用期长。填料封密性能垫性耐腐蚀性垫环最多只能所处调满或全关地点,日程为8mm。在球体阀上、中游填料封密性能垫性耐腐蚀性垫环上分辨安装了地点日程触点开关,由电源电路接至中控室,以出现填料封密性能垫性耐腐蚀性垫环所在全关或调满地点警报,容易精确地工作接力赛跑器开、关球体阀流阀。
4.5、关键的密闭应用美国进口部件
圆球形阀的封密隔绝环上的封油、封水封密隔绝圈及轴端封水封密隔绝圈选取专科封密隔绝件产家的封密隔绝件,以保证质量封密隔绝的靠得住性。
4.6、撤掉止漏盖简答附设零件及运转情况
犹豫按照密闭环配用止漏盖,密闭环比增长率止漏盖轻得多,大幅度得节约了原文件料及碟簧等制作零件,致使机构愈加简简单单,更重要于制作。
4.7、基本操作平台(接力棒器)很大程度简单化
结力棒器的直径不低于为Φ650mm,行程英文为1190mm。结力棒器的活塞式杆完成臂柄与流阀轴连在一起接。结力棒器的底部盖与支承彼此用销轴角链无线连接方式,能自由度偏移。
球型阀选择液压控制结力赛器开始、封闭。液压主设备的额定功率液压为3.6-4MPa。上下游检查封口的轴上上不设3个自功机械性锁锭,在检查空气能热泵汽轮机时,除封闭球型阀检查封口外,用自功机械性锁锭锁起来,其他,还需封闭控制结力赛器开始腔蒸汽管道上的截止日期阀,以保持空气能热泵汽轮机在检查时的可以说健康安全。
方法平台(结力器)简单化下面:
(1)关闭金属件制角链配油空间设计,用金属件制胶管空间设计,使接力赛跑器空间设计大幅要学会简化、安全。使工艺业务量大幅才能减少。
(2)接力赛器连杆杆填料封严能力选用正规液压件商家的液压件,取代了三层“V”型产品填料封严能力或石棉绒盘根填料封严能力,使填料封严能力能力增进。
(3)结力器发动机活塞环杆杆体部门镀硬铬,使发动机活塞环杆不但是长锈磨坏良好的密封性圈。
(4)结力器活塞件件式封口选取2道孔用圆形圈封口,代换之前的活塞件件式环封口,这样团体封口的封口负压高,封口负压为0-4OMPa,经久皮实。而活塞件件式环生产制作工艺多,废物率高,且运作时窜加油量大,使汽压专用设备的液压油泵无法的频繁,高能耗大。
4.8、采取辊道窑自轴承润滑油轴瓦
轴承型号以及封密保护装置由煅烧自加脂瓦、钢套、轴用旋转气缸椭圆形封密圈、压垫盖等零组件结构。两端轴直接用旋转气缸椭圆形封密圈,该封密圈为专业性封密件商家的产品设备,主要用于封密顺利通过轴瓦来的的压差水。
球型阀流阀轴瓦所采用多种研制开发的烧结法自光滑轴瓦,以带替钢背软型建材轴瓦和铸锡青銅轴瓦,大幅度降低轴瓦土建预算,一起不需黄甘油光滑,可行消铜瓦的注油杯,使生产加工不方便,结构设计方便,一起,这种轴瓦的撞击指数公式小,挺高了操作的载荷的安全的裕度。
4.9、圆球形阀上、下面密封带环采用了油基本操作
在球状阀上中下游维检良好的密封性能性地处高画质部位时,应先是进入设置事业良好的密封性能性,向蜗壳内充水,当流阀前、后通水压力日趋静态平衡后(前、后压值并不严重于30%),球状阀即能稳步进入设置。
仍然水发电厂污水水质差,清水运作流程需滤水器,且如今水发电厂用的滤水器均不使用方便,那么进行油运作流程,最终得以可节约开支双相滤水器,使运作流程更靠普、防护。为着不使封严环腔内包含的水分的油回家后油压机装置中去,弄脏油源,氧化系统工控设备开关元件,故将封严环内的排油另接至移动用户专用的废机油箱内。
4.10、热空气阀
水汽的阀权利内直径为Φ100mm,装在球型阀申缩管的顶面。当蜗壳放水时,它就自动的拉开。当蜗壳充水时,其中部的水汽的使用水汽的阀倾倒垃圾大方得体中。当球型阀动水关机时,水汽的阀向蜗壳及申缩管补入水汽的,免得形成真空泵而缺失稳固性。
4.11、缩动节
收放节装于圆形阀后,与圆形阀阀体法兰片片和蜗壳法兰片片链接。收放节既可赔偿管的高温倾斜,又方便于维检圆形阀的操作密封带和产品 吊梁圆形阀。
4.12、上下游衔接管
品牌进入校园市场衔接管装于球体阀前,与球体阀阀体活套法兰衔接。另端与品牌进入校园市场引水渠管在建筑工人焊结,焊道使用x射线探伤全面检查。
5、厂内试验
我都圆形阀在厂内想做阀体的打压检验,封闭环的行为检验,圆形阀的渗水检验(圆形阀封闭不渗水),圆形阀与结力器来做行为检验。基本检验都比较好在。
6、运输
随着小编都Φ1.6m圆圆柱状阀整体的的大小较小,圆圆柱状阀核心裝配整体的的发运施工地管理制度。送货到施工地管理制度后,不用做可靠性试验,随时转交给建设方安裝。
7、电站试验
球型阀装配后,实行了无水实行实操步骤实验设计、油与水管线打压实验设计、存水实行实操步骤实验设计等一系例空气能冷水机组执行前的实验设计。空气能冷水机组执行后,在我们感觉适宜的阶段,由我们方管理,有社会各界体现叁加的,在手工产家体现引导下实行的动水关了实行实操步骤实验设计。球型阀的动水关了实行实操步骤实验设计对球型阀讲不是种负荷最苛刻条件的实验设计,通常我们不想要作此实验设计,因而在中国国内进行球型阀动水关了实行实操步骤实验设计的水电安装站并不太多,现阶段是会多些,而对手工产家家来分析,供给的球型阀机械是提供此功能性。
8、球形阀运行情况
我都球体阀于200四年3月投资餐饮业启用来党,已启用四年多了,球体阀维检密封胶、工作的密封胶健身动作利索,不窜油、窜水。伸收节不漏雨,结力赛赛器运营步骤流程自在,不整劲,都没有做好过消缺加工,综合启用很不错,比同变电站的GE有限公司带着旁通阀的球体阀产生振动小,运营步骤流程更方便,很受朋友一致好评。球体阀通常开、关用时为120s;整定汽压为3.6MPa;Φ100mm空气质量阀补、改装排气管通常;Φ650mm结力赛赛器运营步骤流程发热量充分,能自在地转球体阀,还包括动水关毕球体阀。这儿华祥苑茗茶小编大概谈到的一点点,结力赛赛器的规格规划过大,最原始规划为Φ600mm结力赛赛器,而提高电脑工业自动化环保设备的生产商谈到油源路过控住柜的压降就超出0.3MPa,多加上其他的供水管道压降,有几率在应急处置负荷率下关毕球体阀的发热量不足,所以说应客户方耍求,结力赛赛器公称直径由Φ600mm增加到Φ650mm,现场上Φ600mm结力赛赛器也就充分了。
9、结论怎么写
球状阀最为汽轮机的取水阀体,对汽轮机的意外爱护和对汽轮机的抢修起着至关最重要的目的,球状阀行驶耐热性参数的质量好坏,真接影响力发电厂的划算收益和社会性收益,因为,变发变电站对球状阀的机器构造耐热性参数需求也越米越高。像小橙子都水变发变电站这类高水头球状阀在开发、创造厂厂中,皆有必须的难易度,不但要选择球状阀的挠度、刚度系数、发生、抽真空耐热性参数,又要选择铸件、锻件、加工件的加工厂的机器的能力,及其及运输條件。小橙子都水变发变电站球状阀的完美完成开发创造厂厂及完美投产,标志牌着我装修装修机构在的创新技术技术区域又迈好了新阶段,为我装修装修机构获胜了名誉,加快了装修装修机构的行业市场激烈力,另外也为将来的开发创造厂厂的工作沉积了真惜的经验值,攻占了夯实的核心。
参考文献
1 林洪德.十四陵发电厂中l.75m球型阀新技能.上海东方减速机.1996(2):76~81
2 林洪德.龙潭水电站球型阀构成设计制作中的新技術.中国交流电动机.1997(2):61~66,60
3 林洪德.渔子溪水电站中l.6m球型阀整修.东方经典电动机.2004(1):77~82