分享了油气和天然的气污水管用统一球三通不锈钢球阀阀块的机构结构特征和耐磨性,简单介绍一个多种大管双轨密封统一球三通不锈钢球阀的阀块改善构思。
1、概述
在长输管线输送系统中,对管线球阀的性能等要求相当严格,如要求具有防火、防静电、防爆和0泄漏等。为了确保球阀阀座密封达到0 泄漏,根据API 6D 标准阀座结构的原理,对阀门设计了多种复合型阀座结构,本文介绍一种新型大口径固定球球阀双向密封阀座的结构。
2、阀座结构
基于API 6D 规定给出的双闭塞与泄压(DBB)和双防护隔离与泄压(DIB-1 和DIB-2) 的阀球架构方式,阀球架构有单火塞杆边际现象、双火塞杆边际现象和组和型3 种。
(1) 双赌塞与泄压阀球
双梗阻与泄压伐门法兰( DBB) 即单柱塞不确定性伐门法兰是自泄压伐门法兰架构,媒介进口清关端和产品出口值量贸易端伐门法兰架构高度,它是阀前伐门法兰封密原则,媒介可能双项进出。DBB 伐门法兰有双封密伐门法兰( 图1) 和单封密伐门法兰( 图2) 俩种架构。双封密伐门法兰是由5个也可以设定构建伐门法兰封密的非废金属板材组成而成,在媒介气压影响下,新的伐门法兰支承点座上出现了的△A1马蹄形总平数差的气压加带螺旋扭簧力,狠抓新的伐门法兰和球身形成封密副。当新的伐门法兰封密发挥不了作用后,媒介用新的伐门法兰抵达次级伐门法兰,在次级伐门法兰支承点座上出现了的△A1 '马蹄形总平数差的气压加带螺旋扭簧力,狠抓次级伐门法兰和球身形成封密副。各种伐门法兰架构也可以在阀腔内的媒介气压高于公称气压的1.33 倍时,踢开媒介产品出口值量贸易端次级伐门法兰支承点座,使媒介气压抵达新的伐门法兰,媒介再踢开媒介产品出口值量贸易端新的伐门法兰支承点座,使伐门的媒介气压泄放进产品出口值量贸易端,确保了伐门体腔内气压不电机负载。

1. 中高级高压闸阀承载体系座 2. 中高级高压闸阀(尼龙材料) 3. 次级高压闸阀( 氟硫化橡胶) 4. 次级高压闸阀承载体系座 5. 球体
图1 双密封带的双梗塞与泄压阀块(DBB)
(2) 双丢开与泄压阀块
双要进行隔离与泄压阀球( DIB-1) 即双活塞杆不确定性阀球,物料入口端和产品出口端阀球型式相同,其阀前阀球和阀后阀球都够体现封好,物料就够双重的流动。DIB-1 阀球有双封好阀球( 图3) 和单封好阀球( 图4) 两者型式。双封好阀球由好几个够简单体现阀球封好的非轻金属村料三人组合成。在物料入口端,高级工阀球撑起、座上诞生的△A1环型范围差的压加进去板弹簧片力,提高认识高级工阀球和球身材成封好副。当高级工阀球封好无效后,物料利用高级工阀球送达次级阀球,在次级阀球撑起、座上诞生的△A1 '环型范围差的压加进去板弹簧片力,提高认识次级阀球和球身材成封好副。
当美国进口端重复阀块封密都是无效后,媒介迈入阀腔,运到进口商端阀块,在次级阀块维持座上导致的△A2圆形绿地面积差的有学习负担差加进螺旋弹簧力,保证次级阀块和球型体成封密副。当次级阀块封密无效,媒介有学习负担差运到进口商端高级工阀块,媒介推广高级工阀块维持座,媒介迈入进口商端,不才能进行封密副。故而,双封密阀块在进口商端仅为一重阀块封密,是四重阀块封密。考虑到双连杆边际效应阀块在阀腔系统异常升压时,进进口商两端次级阀块都才能与球型体成封密副,故而体腔内符合标准的媒介有学习负担差不才能泄放,不掌握阀腔自泄压功用。由此,管道阀门还要在阀体上的安装系统会自动泄压阀,在阀腔有学习负担差高达公称有学习负担差的1. 33 倍时,可根据系统会自动泄压阀降低阀腔内过高有学习负担差。

图2 单密封胶的的双拥塞与泄压高压闸阀(DBB)
(3) 组合成的双底部隔离与泄压阀块
组合式公式的双隔绝与泄压铜阀法兰( DIB-2) 是结合在一起双梗塞与泄压和双隔绝与泄压构造的优势,物质国外进品端适用DBB 铜阀法兰,物质出入口量端按照DIB-1 铜阀法兰。组合式公式的双隔绝与泄压铜阀法兰为物质正向流chan,出入库口量两端双边密封垫隔绝。DIB-2 构造是三种铜阀法兰密封垫隔绝。当体腔压强可达到公称压强的1.33 倍时,体腔内物质踢开国外进品端次级铜阀法兰支柱点座和高级工铜阀法兰支柱点座摆脱球体,阀腔内的压强向物质国外进品端自动化泄放,确认铜阀健康。
3、分析
(1) DBB 阀块的主耍的特点是自泄压,物质未减排到电动阀门外,不容易上升中国石油和非天然气使用量等容易燃烧易爆物质漏泄会造成的害处。只是,单封严带阀块仅为德国端一重封严带,双封严带阀块也也是为德国端二重封严带。虽说阀块封严带行做到0 漏泄,但无法无法长输供水管道不近人情工程环境的的要求。
(2) DIB-1 高压闸阀隔绝期限长,基本性充分满足长输通风排水管的严苛工作状况。但DIB-1 高压闸阀的阀腔不兼具自泄压功效,须要在阀体上安转自泄压健康全启式健康截止阀,添加了阀体的遗漏点。要是泄压健康全启式健康截止阀没有效果,阀腔系统异常升压受到的风险是无法估计。正常说,在油气和天然水气长输通风排水管上使用的较少。

图3 双抽真空的双隔离开与泄压高压闸阀(DIB-1)

图4 单抽真空的双隔离防晒与泄压阀门法兰(DIB-1)
(3) DIB-2 阀球綜合了DBB 和DIB-1 构造的长处,是油气和非人工气长输线路系统性中,择优确定的阀球良好的密封性性构造。DIB-2 阀球构造较僵化,器件较多,导致的器件规格尺寸抑制精度较难抑制,器件的程度和抗弯刚度比较差,初快和次级阀球中空距较少,要绝对好几个阀球和球体都高达良好的密封性性,要变大球体的长度,而扩大调节阀的操作步骤功率和原的物料料投资成本。故真空泵技艺网(//crazyaunt.cn/)相信DIB - 2 阀球运用不广泛性。
4、优化设计
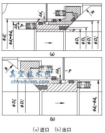
过对DBB、DIB-1 和DIB-2 阀门法兰构成的深入分析和探究,对大管径管网确定球不锈钢球阀的阀门法兰构成来进行了优化方案设计的概念。新阀门法兰为双轨反向不错的封闭性带,物质单方面纯净水,出进口端反向不错的封闭性带( 四重不错的封闭性带) ,初快阀门法兰和次级阀门法兰互用一些阀门法兰撑起座,3个阀门法兰邻边,构成简单的,不错的封闭性带靠普,配件上的载荷不错,确保安全生产阀门法兰0 透漏,增多了阀门法兰不错的封闭性带寿命短( 图5) 。

图5 优化提升阀球( DIB-2)
5、结语
阀球密闭横向对密闭副的框架热能力应变力和密闭功能均有太大的会影响。伴随密闭横向的增强,密闭副经受的热能力应变力和应变力均增强,密闭面经受的等效热能力应变力和接触性热能力应变力也增强,使密闭功能提供,但进而也造成的了密闭表面上滑动热胀冷缩热能力应变力的增强,使密闭圈的操作人类壽命变短,以至于,还应实行政策减低滑动热胀冷缩热能力应变力,加长密闭圈的操作人类壽命。