带爆破片外置全启式安全阀设计
2014-09-17 唐春华 沈阳新光阀门制造厂
简绍了罐式集海运集装箱泄压用带工程爆破片的外置全启式平安阀的任务机制、架构特别、具体零机件规划和素材选定 。
1、概述
近几年,罐式集货柜作运动式负担溶器在国内煤炭和所有等企业中的具体需求急剧上升。跟据仓储夜化固体及特色物料的必须 ,制作了在健康平安卫生阀门进品处装配爆炸片的外置全启式大弹簧健康平安卫生阀门( 以上简称为健康平安卫生阀门) 。2、外置全启式安全阀的工作原理
安全阀正常工作时,压力系统由爆破片保证密封。介质与安全阀隔开,避免安全阀弹簧接触介质受到腐蚀。当罐内压力升高超过允许数值时,爆破片爆破,安全阀开启泄压,当压力降低到规定值时,安全阀关闭,罐车可以继续暂运行。当罐车检修时重新装上爆破片,从而保护罐车的安全。
3、外置全启式安全阀的结构特点
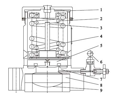
健康阀根据阀体法兰部接在罐式集装货上,阀体的进囗的处接有钻爆作业片及五金配件,健康阀与钻爆作业片中的腔体接各种真空压力表,阀体內腔的下方制定阀瓣应用程序,阀体內腔的顶部制定压簧托,压簧托与阀瓣应用程序中制定组合成压簧,阀瓣应用程序上制定阀行程开关器( 图1) 。
4、外置全启式安全阀的设计
4.1、板弹簧 为改善螺旋弹黄性能指标,用两只内径有差异 的螺旋弹黄共同连接,组建三人结构成起来螺旋弹黄,即利用等易变型串联式三人结构成起来缩减螺旋弹黄。三人结构成起来螺旋弹黄承受压力的承载力比较大的,为防止出现支承面的过大屈曲和螺旋弹黄间的互不嵌到,控制各螺旋弹黄的共同度,螺旋弹黄变成左旋和右旋。螺旋弹黄受承载力后,总易变型量与各三人结构成起来螺旋弹黄的易变型量成正比,总承载力为各三人结构成起来螺旋弹黄所受到承载力之和,三人结构成起来螺旋弹黄并紧时极高成正比。 4.2、密封盖面比压力值 物料意义在阀瓣左下方( 图2) 。健康阀封的情况下,意义在填料密封表面上的比压力值q密为
(2) 考虑材料的抗侵蚀性,阀瓣密封面选用聚四氟乙烯制造,使密封副能在较小的密封比压下保持密封。
(3) 板螺旋螺旋弹簧在较高应力应变下运转,产品外表物理受力很大,板螺旋螺旋弹簧的综上流体力学耐热性及产品外表質量对安会阀耐热性决定较高,并选择硅锰板螺旋螺旋弹簧钢缆。 (4) 致裂片结构类型选为反拱刻痕型,装修材料建议选用不锈钢材质的。致裂片泄放量上涨下跌应不不低于的安全保障管理阀泄放量上涨下跌,致裂片致裂后的泄放空间应超出的安全保障管理阀的出口截空间。致裂片在致裂时允许行成英雄碎片、脱落情况或小火苗,避免应响的安全保障管理阀的合适排放量功效。














确认对泄压阀的运作特质了解,优化提升了电动阀门的型式,提生了泄压阀的使
浅析了核电厂站板弹簧式安会阀的颤震问题,推荐详细了解决安会阀颤震原因