波纹管密封先导式安全阀
2015-01-27 郑子林 永一阀门集团有限公司
介绍了新型先导式安全阀利用波纹管对阀瓣上腔密封的特性,解决了阀门使用在高温介质中密封性差,容易产生内漏等问题。
1、概述
普通的先导式安全阀采用O形圈或其他橡胶垫片密封,如果安全阀使用在高温介质( 如高温蒸汽) 等工况,易出现密封性差和内漏等缺陷。本文介绍一种用于复杂工况的新型波纹管密封先导式安全阀。
2、波纹管密封先导式安全阀的工作原理
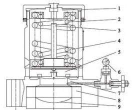
波纹管密封先导式安全阀由阀体、导管、阀瓣、导向套、波纹管、导阀、阀盖和弹簧等组成(图1) 。当设备处于正常状态,介质压力处于正常工作压力时,介质从主阀进口侧通过导管进入到导阀,再由导管进入到阀瓣上腔。阀瓣上腔介质压力与主阀进口侧介质压力相等。由于阀瓣上部受压面积大于下方密封面处的向上受力面积,因此阀瓣密封面处具有足够的密封比压,密封性可靠。当设备介质压力上升到预设定的整定压力值时,导阀开启,阀瓣上腔的介质瞬间排放,压力下降,阀瓣下方的介质向上推力大于上方介质向下的作用力,阀瓣向上开启,安全阀整体排放,当设备介质压力下降到正常压力值时,导阀关闭,阀瓣上腔压力回升,阀门关闭。

3、波纹管密封先导式安全阀的性能
纹线管密闭先导式安全的阀的阀瓣上端无线连接有不锈钢材质纹线管,使阀瓣上腔的媒质与目标套隔離,阀瓣与目标套两者之間不须无线连接许多的密闭相关材料,于是耐中高温性好。因纹线管与许多零部位无对应磨擦轮胎磨损情况,那么用生命周期长。纹线管密闭件与阀瓣和阀盖两者之間采取对焊的类型无线连接,未受室内温度的影响到及媒质的腐蚀,减太小轮胎磨损情况性,密闭性好。4、结语
波纹管密封先导式安全阀适用范围广,经济性好,使用寿命长,能够满足工况的苛刻条件。
















进行对泄压阀的姿态特点探讨,优化网络了电动阀门的框架,提生了泄压阀的使
进行分析了核电厂站大弹簧式安全性高性高阀的颤震诱因,简绍掌握决安全性高性高阀颤震原因